Ver Tour Virtual
- $2,803,920 En Venta
- 1 recámara
- 1 baño
- 50.07 m² de construcción
- 1 Estacionamientos
Detalles
- Tipo: Departamento
- ID: EB-UQ0698
- Recámaras: 1 recámara
- Baños: 1
Descripción
Temozón Norte, una de las zonas de mayor plusvalía y crecimiento en Mérida, surge Torre Temozón, un desarrollo de usos mixtos que redefine el estilo de vida urbano. Este innovador proyecto integra departamentos, oficinas y locales comerciales, creando un espacio contemporáneo donde la comodidad, la funcionalidad y el diseño convergen en perfecta armonía.
Torre Temozón ofrece una amplia variedad de tipologías de departamentos, desde 44 m² hasta más de 120 m², con distribuciones inteligentes que aprovechan cada espacio. Los acabados de alta gama incluyen pisos de mármol travertino, cocinas integrales con mesetas de granito, closets de carpintería en madera natural, y terrazas con piso porcelanato, brindando un ambiente elegante y moderno.
El desarrollo está concebido para ofrecer un estilo de vida completo: áreas residenciales, locales comerciales y oficinas conviven en un mismo entorno, garantizando practicidad y plusvalía. Su diseño arquitectónico vanguardista invita a vivir, trabajar y disfrutar sin salir del mismo lugar.
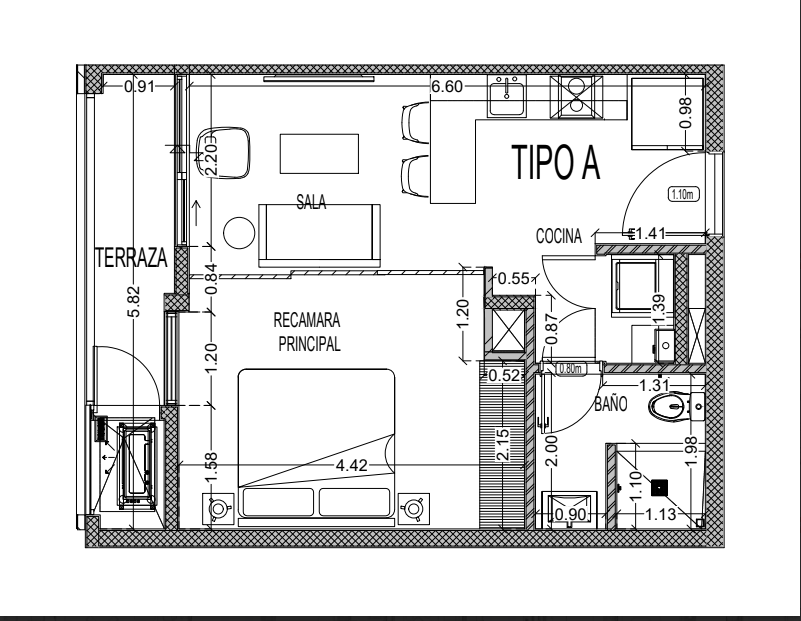
Tipo A
Precio: $ 2,803,920.00
Un espacio moderno y eficiente, pensado para quienes buscan independencia sin renunciar al confort.
Su diseño abierto genera una sensación de amplitud y luminosidad natural.
Características principales:
• Superficie habitable: 50.07 m²
• Superficie Total: 62.57 m²
• 1 recámara con closet vestidor
• 1 baño completo
• Cocina con barra desayunadora
• Sala y comedor con acceso a terraza
• 1 cajón de estacionamiento
Acabados:
• Piso de mármol travertino
• Cocina con cubierta de granito
• Puertas e interiores de madera natural laminada
• Fijos de cristal templado en baño
Cada departamento ha sido diseñado con materiales de primera calidad y un estilo contemporáneo que resalta la elegancia de sus espacios:
• Cocina integral con meseta de granito, tarja y gavetas inferiores y superiores de melamina.
• Piso de mármol travertino en interiores.
• Puerta principal de pino natural con interiores de triplay laminado.
• Terraza con piso de porcelanato.
• Fijos de cristal templado en baños.
• Closets de carpintería totalmente equipados.
• Baños con muebles y accesorios de marcas premium como Helvex y Castel.
Amenidades exclusivas.
• Alberca panorámica con área de camastros
• Terraza social y bar lounge
• Gimnasio equipado
• Salón de usos múltiples
• Área de coworking y oficinas privadas
• Locales comerciales en planta baja
• Estacionamiento techado
• Lobby con recepción y control de acceso
• Elevadores de alta velocidad
• Seguridad 24/7 y circuito cerrado de vigilancia
Ubicación privilegiada
Torre Temozón se encuentra en una de las zonas más exclusivas de Mérida, a solo minutos de universidades, hospitales, centros comerciales y vialidades principales como Periférico Norte y Carretera Progreso.
Una ubicación estratégica que garantiza alta plusvalía y un estilo de vida conectado.
Avisos Importantes:
• Las imágenes son exclusivamente ilustrativas y las especificaciones están sujetas a modificaciones.
• El mobiliario, elementos decorativos y accesorios no están incluidos en el precio salvo que se estipule por escrito.
• El precio publicado no incluye gastos notariales, impuestos, avalúos ni cuotas de mantenimiento.
• El precio total dependerá de los montos variables de conceptos notariales y de crédito, conforme a la NOM-247-SE-2021.
Torre Temozón ofrece una amplia variedad de tipologías de departamentos, desde 44 m² hasta más de 120 m², con distribuciones inteligentes que aprovechan cada espacio. Los acabados de alta gama incluyen pisos de mármol travertino, cocinas integrales con mesetas de granito, closets de carpintería en madera natural, y terrazas con piso porcelanato, brindando un ambiente elegante y moderno.
El desarrollo está concebido para ofrecer un estilo de vida completo: áreas residenciales, locales comerciales y oficinas conviven en un mismo entorno, garantizando practicidad y plusvalía. Su diseño arquitectónico vanguardista invita a vivir, trabajar y disfrutar sin salir del mismo lugar.
Tipo A
Precio: $ 2,803,920.00
Un espacio moderno y eficiente, pensado para quienes buscan independencia sin renunciar al confort.
Su diseño abierto genera una sensación de amplitud y luminosidad natural.
Características principales:
• Superficie habitable: 50.07 m²
• Superficie Total: 62.57 m²
• 1 recámara con closet vestidor
• 1 baño completo
• Cocina con barra desayunadora
• Sala y comedor con acceso a terraza
• 1 cajón de estacionamiento
Acabados:
• Piso de mármol travertino
• Cocina con cubierta de granito
• Puertas e interiores de madera natural laminada
• Fijos de cristal templado en baño
Cada departamento ha sido diseñado con materiales de primera calidad y un estilo contemporáneo que resalta la elegancia de sus espacios:
• Cocina integral con meseta de granito, tarja y gavetas inferiores y superiores de melamina.
• Piso de mármol travertino en interiores.
• Puerta principal de pino natural con interiores de triplay laminado.
• Terraza con piso de porcelanato.
• Fijos de cristal templado en baños.
• Closets de carpintería totalmente equipados.
• Baños con muebles y accesorios de marcas premium como Helvex y Castel.
Amenidades exclusivas.
• Alberca panorámica con área de camastros
• Terraza social y bar lounge
• Gimnasio equipado
• Salón de usos múltiples
• Área de coworking y oficinas privadas
• Locales comerciales en planta baja
• Estacionamiento techado
• Lobby con recepción y control de acceso
• Elevadores de alta velocidad
• Seguridad 24/7 y circuito cerrado de vigilancia
Ubicación privilegiada
Torre Temozón se encuentra en una de las zonas más exclusivas de Mérida, a solo minutos de universidades, hospitales, centros comerciales y vialidades principales como Periférico Norte y Carretera Progreso.
Una ubicación estratégica que garantiza alta plusvalía y un estilo de vida conectado.
Avisos Importantes:
• Las imágenes son exclusivamente ilustrativas y las especificaciones están sujetas a modificaciones.
• El mobiliario, elementos decorativos y accesorios no están incluidos en el precio salvo que se estipule por escrito.
• El precio publicado no incluye gastos notariales, impuestos, avalúos ni cuotas de mantenimiento.
• El precio total dependerá de los montos variables de conceptos notariales y de crédito, conforme a la NOM-247-SE-2021.
Amenidades
- Estacionamiento techado
- Facilidad para estacionarse
- Terraza
- Accesibilidad para adultos mayores
- Accesibilidad para personas con discapacidad
- Aire acondicionado
- Cocina equipada
- Elevador
- Seguridad 24 horas
- Alberca
- Gimnasio
- Salón de usos múltiples
Ubicación












