Ver Tour Virtual
          - $77,200 En Renta
 - 560 m² de construcción
 - 800 m² de terreno
 
Detalles
- Tipo: Nave industrial
 - ID: EB-UF8675
 - Clave interna: NAVE46
 - Antigüedad: A estrenar
 - Pisos: 1
 
Descripción
Nave configurable con posibilidad de integrar oficinas ejecutivas, sistemas contra incendio y CCTV, ideal para uso de almacenamiento, distribución o logística.
Características de la nave:
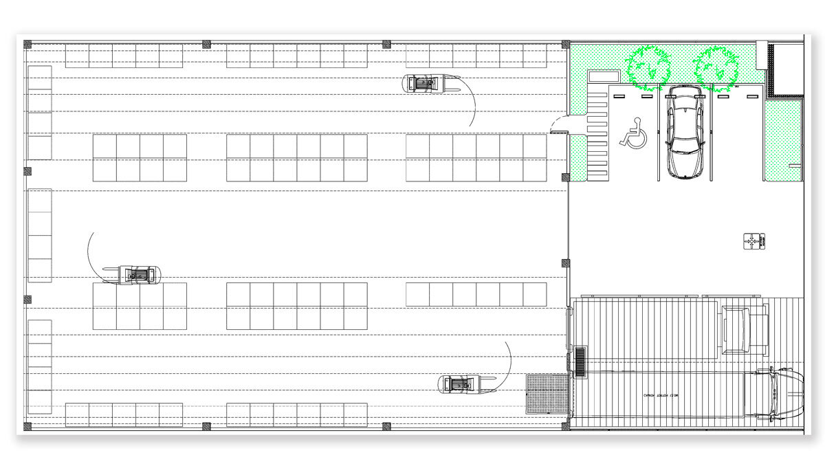
- Terreno privado de 800 m2
- Nave 560 m2
- Patio de maniobras y servicios 240 m2
- Altura máxima 10m
- 3 cajones de estacionamiento independientes para vehículos
- 2 andenes para carga y descarga independientes en cada nave
- Rampa para vehículos ligeros y pesados
- Pisos MR de alta resistencia
- Servicios independientes por nave (agua, acometida eléctrica en tres fases, fibra óptica)
- Patios de maniobras con posibilidad de cerca perimetral
-Oficinas con comedor y núcleos sanitarios (opcional)
- Cortinas enrollables mecánicas
Beneficios del parque:
-Ecotecnologías
- Urbanización de primer nivel
- Control de acceso
- Vigilancia 24/7
- Vialidades con asfalto
- Iluminación urbana solar
- Drenaje pluvial (Recarga de mantos acuíferos)
- Fibra óptica
- Red de agua potable
- Hotel operativo
El precio publicado es más IVA
En Castelli Park no solo adquieres una inversión estratégica, sino un modelo integral de soluciones ilimitadas.
Contáctanos hoy y agenda tu visita.
Amenidades
- Andén
 - Facilidad para estacionarse
 - Accesibilidad para personas con discapacidad
 
- Rampas
 - Seguridad 24 horas
 
Ubicación

        
      
      
      
      
      
      
      
  
  
            










