 Ver Tour Virtual
Ver Tour Virtual
          - $717,570 En Renta
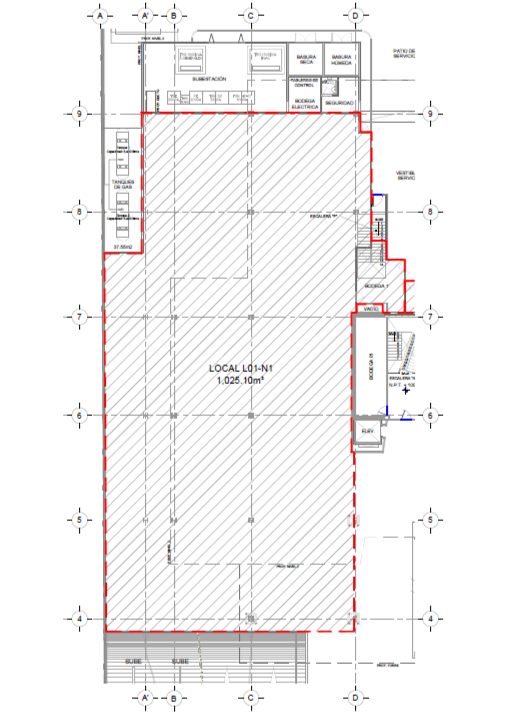
- 1,025 m² de terreno
Detalles
- Tipo: Local comercial
- ID: EB-LA4671
- Antigüedad: A estrenar
- Piso: Planta Baja
Descripción
    CARACTERÍSTICAS: LOCAL DE 1,025 M2 EN RENTA EN LA PLANTA BAJA DE LA NUEVA TORRE CORPORATIVA DOS PUNTAS ANDARES, IDEAL PARA RESTAURANTE, CONCESIONARIO DE AUTOS O CLUB NOCTURNO, CON VISTA A REAL ACUEDUCTO, DENTRO DE LA ZONA DIAMANTE DE GUADALAJARA , CON VIAS DE ACCESO RÁPIDO COMO AV. PATRIA, AV ACUEDUCTO Y PERIFÉRICO, EL LOCAL SE ENTREGA EN OBRA NEGRA Y CUENTA CON TODOS LOS SERVICIOS (AGUA,LUZ,GAS Y DRENAJE). EL ESTABLECIMIENTO CUENTA CON 3 NIVELES DE ESTACIONAMIENTO PARA LA ZONA COMERCIAL.
  
Amenidades
- Estacionamiento techado
- Facilidad para estacionarse
- Terraza
- Accesibilidad para adultos mayores
- Accesibilidad para personas con discapacidad
- Aire acondicionado
- Bodega
- Circuito cerrado
- Elevador
- Seguridad 24 horas
- No se aceptan mascotas
Ubicación

 
         
       
       
       
       
       
       
       
       
       
       
       
       
       
       
       
       
       
   
   
            








