MAC INMOBILIARIA

  • 5569691589
  • MAC.easybroker.com

SE RENTA BODEGA INDUSTRIAL EN PLAYA DEL CARMEN

Zona Industrial, Playa del Carmen

$1,507,880 For Rent

  • 24 Parking spaces
  • 6,556 m² total space
  • 37,542 m² Lot Size
  • EB-TN1518 ID
Description

Se encuentra en el "Parque Industrial Playa del Carmen", ubicado a unos metros de la salida de Playa del Carmen hacia Tulúm.

CARACTERÍSTICAS
- 12 metros de altura
- 24 estacionamientos
- 5 andenes
- 1 acceso
- Caseta de vigilancia con seguridad y acceso controlado

Precio por m²: $230 más IVA.

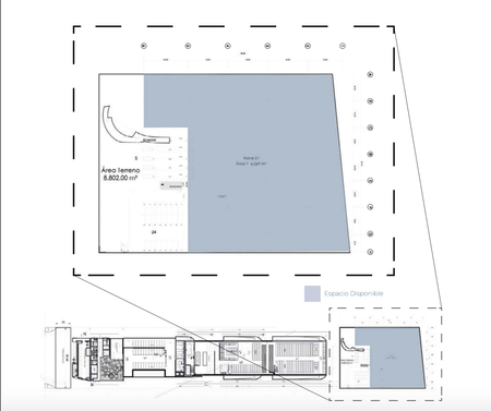
TERRENO
37,542.00 m2
SUPERFICIE DISPONIBLE
8,802.00 m2
CONSTRUCCIÓN EXISTENTE
GRUPO MODELO
10,313.00 m2
NAVE 01 (B.T.S.) (DISPONIBLE)
6,069.00 m2
MEZZANINE
475.00 m2
C. VIGILANCIA
12.00 m2
TOTAL
6,556.00 m2

Amenities
  • Platform
  • Street parking
  • Door man

MAC INMOBILIARIA

  • 5569691589
  • MAC.easybroker.com