MAC INMOBILIARIA

  • 5569691589
  • MAC.easybroker.com

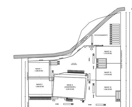
Nave industrial nueva disponible para renta Querétaro

El Sáuz Alto, Pedro Escobedo

$100 per m² For Rent

  • 1,296 m² total space
  • 3,000 m² Lot Size
  • EB-SP3340 ID
Description

Se renta Bodega 1 con una superficie de 1,296 m² ubicada en un complejo industrial de primer nivel. Esta bodega ofrece las siguientes características:
Ubicación estratégica con fácil acceso a carretera y transporte.
Altura de techo ideal para almacenamiento y operaciones logísticas.
Capacidad eléctrica hasta 300 KVAs mediante contratación de transformador eléctrico. Ideal para maquiladoras.
Bodega a pie de calle (sin andén de carga y descarga) para facilitar el acceso directo.
Amplio patio de maniobras que facilita las operaciones de carga y descarga.
Seguridad 24/7 para garantizar la protección de tus activos.
Construcción moderna con materiales de alta calidad para un entorno eficiente y seguro.

Esta bodega es ideal para operaciones logísticas, almacenamiento y distribución. ¡No pierdas la oportunidad de establecer tu negocio en una ubicación privilegiada!

Amenities
  • Cistern
  • Covered parking
  • Street parking
  • Patio
  • Private housing development

MAC INMOBILIARIA

  • 5569691589
  • MAC.easybroker.com