MAC INMOBILIARIA

  • 5569691589
  • MAC.easybroker.com

En Renta | Bodega Industrial | Toluca, Estado de México | 2,222m2

La Constitución Totoltepec, Toluca

$311,080 For Rent

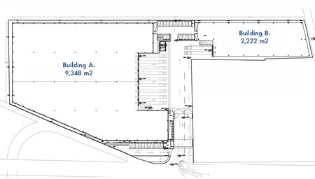
  • 2,222 m² total space
  • EB-TA5038 ID
Description

Nave Industrial localizada estratégicamente entre principales avenidas y autopistas.

SUPERFICIE
Bodega B: 2,222m2
Oficinas: Según las necesidades del cliente

CARACTERISTICAS GENERALES
-Andenes: 2
-Rampas: 1
-Construcción: Muros de concreto armado. Muros de block perimetral.
-Techumbre: Lamina KR - 18 con aislante termoacústico de 2"
-Iluminación: Lamina acrílica translucida que cubre el 10% de la superficie.
-Bahía: 16.6m x 23.4m
-Altura: 12m min. /15m max.
-Piso: Resistencia 7ton/m2
-Estacionamiento: 8

DISPONIBILIDAD
Diciembre 2025

PRECIO
$140 MXN/m2


(Disponibilidad y precio sujeto a cambio sin previo aviso)

MAC INMOBILIARIA

  • 5569691589
  • MAC.easybroker.com