MAC INMOBILIARIA

  • 5569691589
  • MAC.easybroker.com

Casa en Venta Tamora Residencial, Conkal (Mod. 285)

Conkal, Conkal

$3,900,000 For Sale

  • 3 Bedrooms
  • 3 Bathrooms
  • 1 Half Bathrooms
  • 2 Parking spaces
  • 197 m² total space
  • 300 m² Lot Size
  • 30 m Lot Length
  • 10 m Lot Width
  • $1,413.36 Expenses
  • EB-OS1730 ID
Description

Tamora es una privada residencial pensada para construir momentos inolvidables, en el que se combinan la armonía de la naturaleza, con la innovación y lujo de nuestra ciudad. En una zona de alta plusvalía con un alto desarrollo y crecimiento, ofreciéndote cercanía a diferentes desarrollos residenciales, extensas áreas verdes e increíbles amenidades, te invita a disfrutar de una gran variedad de actividades en familia.

Al norte de la ciudad, estarás a menos de 15 minutos de la Universidad Marista, Modelo y Anáhuac Mayab, llegar a plazas como La Isla, The Harbor y Altabrisa así como el Hospital StarMédica te tomará unos 10 minutos, además está a unos minutos del Periférico de Mérida con fácil acceso a desarrollos comerciales y lugares de entretenimiento, y la Carretera a Progreso, desde donde en menos de 30 minutos podrás estar disfrutando de las hermosas costas yucatecas, definitivamente la mejor elección para tu nuevo hogar.

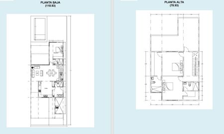
PLANTA BAJA
Sala - Comedor
1/2 baño de visitas
Cocina amplia vestida
Recámara con vista a la piscina y baño propio
Cuarto de servicio con baño
Área de tendido
Terraza trasera con vista a la piscina. 
Piscina (3 x 5)
Espacio para 2 autos

PLANTA ALTA
Recámara principal amplia con closet vestidor y baño
Recámara secundaria con closet vestidor y baño.

EQUIPAMIENTO Y ACABADOS:
•Acabado exterior con rich, emparche y estuco; acabado interior a base de yeso en techos y muros.
•Piscina con acabado chukum, lámpara de led, pozo de llenado de 18 mts con bomba sumergible y pozo de desagüe de 12 mts.
•Aluminio negro línea 3” cristales transparentes de 6mm
•Canceles en baños con cristal templado
•Piso palladium beige
•Escaleras forradas con mármol Travertino Fiorito.
•Pisos de Terrazas de imperial Quartz de interceramic 60 x 60 o similar
•Recubrimiento en baños con mármol travertino Fiorito en área de regadera.
•Mesetas de mármol en baños con lavabo de porcelana sobre cubierta y muebles de madera.
•Meseta de cocina con granito y muebles de mdf y listón de parota
•Cisterna rotoplas de 1200 lts
•Tinacos rotoplas tricapa de 750 lts con electronivel
•Sistema presurizador de agua
•Biodigestor Rotoplas de 1,300 lts.
•Preparaciones para aire acondicionado
•Jardín al frente
•Bajantes pluviales ocultos
•Las casas se entregan impermeabilizadas

FECHA DE ENTREGA: Inmediata

CUOTA DE MANTENIMIENTO: $1,530 mensual se actualiza al momento de la escritura

AMENIDADES:
Casa Club
Sport Bar
Gym
Canchas de Pádel
Salón de eventos
Alberca
Canal de nado
Asoleadero
Salón de juegos
Áreas verdes
Se encuentra en privada

ÁDEMAS CUENTA CON:
Acceso controlado
Caseta de vigilancia

*Precios y disponibilidad sujetos a cambio sin previo aviso.
*Las imágenes mostradas son solo para fines ilustrativos.

Amenities
  • Street parking
  • Garden
  • Terrace
  • Kitchen
  • Laundry Room
  • Double story
  • Private housing development
  • Pets allowed
  • 12 Hour Security
  • Pool
  • Playground
  • Padel courts
  • Gym
  • Multipurpose room

MAC INMOBILIARIA

  • 5569691589
  • MAC.easybroker.com

MAC INMOBILIARIA

  • 5569691589
  • MAC.easybroker.com