MAC INMOBILIARIA

  • 5569691589
  • MAC.easybroker.com

CASA EN PREVENTA EN SANTA INÉS .16

El Campanario, Querétaro

$11,400,000 For Sale

  • 3 Bedrooms
  • 4 Bathrooms
  • 3 Parking spaces
  • 330.79 m² total space
  • 280 m² Lot Size
  • EB-RO1183 ID
Description

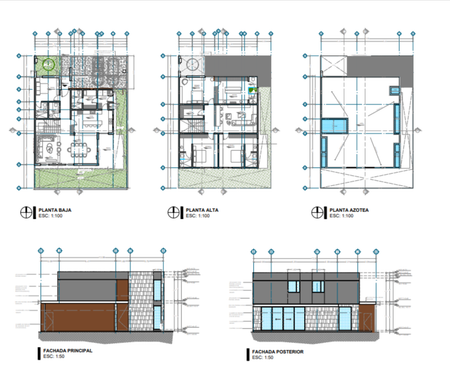
CASA 69

Condominio: Santa Inés
Terreno: 280 m²
Construcción: 330.79 m²
2 Plantas
3 recámaras
4 baños completos
Área de lavado y tendido
Walk-in closet en recámara principal
Habitaciones secundarias con baños y closets
Habitación y baño de servicio
Estudio en planta baja con baño completo
Sala
Área de comedor
Cocina equipada
Estacionamiento techado
Family Room
Cochera para 3 autos
Preparación para mini split en recámaras
Cisternas subterráneas: agua tratada (2,500 litros) y 5,000 litros de agua potable
Enganche 200,000
Pago a la escrituracion: 5,000,0000

Amenities
  • Cistern
  • Covered parking
  • Street parking
  • Equipped Kitchen
  • Double story
  • Study
  • Private housing development

MAC INMOBILIARIA

  • 5569691589
  • MAC.easybroker.com

MAC INMOBILIARIA

  • 5569691589
  • MAC.easybroker.com